register | confirm account | forgot password
Gurinder Grewal
Maxwell Polaris
202, 9618 42 Ave, Edmonton, Alberta
P: 780-450-6300
F: 780-450-6670
Email
Feature Listings Button
Button advertising your Feature Listings
Feature Listings
MLS® Search Button
Button advertising your MLS® Search page
Map-based MLS® Search
Mortgage Widget
Mortgage Widget Button allowing access to the Mortgage Calculator
Mortgage Calculator

Listing Details

For more information on this listing or other please contact me.

Courtesy of RE/MAX Real Estate.
Data was last updated 2025-06-25 at 20:18:11 GMT
$15,000

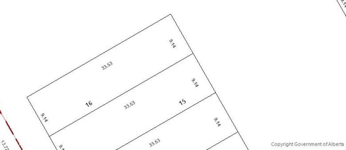
5032 52 Street   Warburg, Alberta

MLS®: E4460085
URL:    
30' X 110' corner lot on main street in Warburg ready to develop. Zoned C-1 offers a wide variety of uses in retail, business and public service including professional services, pharmacy, food and beverage, daycare, laundromat, gym/health club, bakery, light equipment repair etc. Development permit required. Warburg is centrally located between Leduc, Nisku, Drayton Valley, Capital Power/Genesee and Stony Plain. Just 45 minutes to the International Airport.
30' X 110' corner lot on main street in Warburg ready to develop. Zoned C-1 offers a wide variety of uses in retail, business and public service including professional services, pharmacy, food and beverage, daycare, laundromat, gym/health club, bakery, light equipment repair etc. Development permit required. Warburg is centrally located between Leduc, Nisku, Drayton Valley, Capital Power/Genesee and Stony Plain. Just 45 minutes to the International Airport.

Listing Information

Prop. Type:
Land
Status:
Active
City:
Warburg
MLS® Number:
E4460085
Area:
Edmonton
Province:
Alberta
Listing Price:
$15,000

VIP-Only Information

Sign-Up or Log-in to view full listing details:
Sign-Up / Log In
This property is listed by RE/MAX Real Estate and provided here courtesy of Gurinder Grewal. For more information or to schedule a viewing please contact Gurinder Grewal.
Gurinder Grewal
Maxwell Polaris
Phone: 780-450-6300
Mobile Phone: 780-709-7484
Inquire Via Email
Data is deemed reliable but is not guaranteed accurate by the REALTORS® Association of Edmonton.
Data last Updated: 2025-06-25 at 20:18:11 GMT America/Edmonton
This site's content is the responsibility of Gurinder Grewal, licensed REALTOR® in the Province of Alberta.
The trademarks REALTOR®, REALTORS®, and the REALTOR® logo are controlled by The Canadian Real Estate Association (CREA) and identify real estate professionals who are members of CREA. Used under license.
The trademarks MLS®, Multiple Listing Service®, and the associated logos are owned by The Canadian Real Estate Association (CREA) and identify the quality of services provided by real estate professionals who are members of CREA. Used under license.

© 2025, All Rights Reserved | Privacy Policy | Mobile Site | REALTOR® Websites by RealPageMaker