register | confirm account | forgot password
Gurinder Grewal
Maxwell Polaris
202, 9618 42 Ave, Edmonton, Alberta
P: 780-450-6300
F: 780-450-6670
Email
Feature Listings Button
Button advertising your Feature Listings
Feature Listings
MLS® Search Button
Button advertising your MLS® Search page
Map-based MLS® Search
Mortgage Widget
Mortgage Widget Button allowing access to the Mortgage Calculator
Mortgage Calculator

Listing Details

For more information on this listing or other please contact me.

Courtesy of Moore'S Realty Ltd..
Data was last updated 2025-06-25 at 20:18:11 GMT
$35,000

11 Fraser Drive   Breton, Alberta

MLS®: E4450062
URL:    
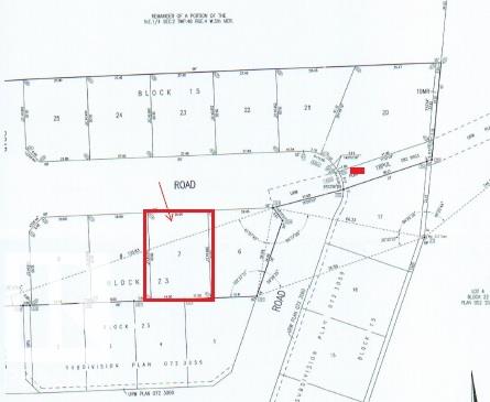
"DEER CROSSING ESTATES. " Lot 7 located in the Village of Breton, approx. one hour SW of Edmonton . No time requirements on building so, when you're ready, build your dream home in this beautiful new subdivision in the Village of Breton which combines extensive retail, professional & community services with peaceful rural lifestyle living. An easy commute to Drayton Valley, Leduc/Nisku, and the international airport, Breton is located within 1/2 hr drive of both Pigeon Lake, Buck Lake, and a variety of area golf courses, providing recreational enjoyment for every season of the year. GST is included in the price.
"DEER CROSSING ESTATES. " Lot 7 located in the Village of Breton, approx. one hour SW of Edmonton . No time requirements on building so, when you're ready, build your dream home in this beautiful new subdivision in the Village of Breton which combines extensive retail, professional & community services with peaceful rural lifestyle living. An easy commute to Drayton Valley, Leduc/Nisku, and the international airport, Breton is located within 1/2 hr drive of both Pigeon Lake, Buck Lake, and a variety of area golf courses, providing recreational enjoyment for every season of the year. GST is included in the price.

Listing Information

Prop. Type:
Vacant Lot/Land
Status:
Active
City:
Breton
MLS® Number:
E4450062
Area:
Edmonton
Province:
Alberta
Listing Price:
$35,000

VIP-Only Information

Sign-Up or Log-in to view full listing details:
Sign-Up / Log In
This property is listed by Moore'S Realty Ltd. and provided here courtesy of Gurinder Grewal. For more information or to schedule a viewing please contact Gurinder Grewal.
Gurinder Grewal
Maxwell Polaris
Phone: 780-450-6300
Mobile Phone: 780-709-7484
Inquire Via Email
Data is deemed reliable but is not guaranteed accurate by the REALTORS® Association of Edmonton.
Data last Updated: 2025-06-25 at 20:18:11 GMT America/Edmonton
This site's content is the responsibility of Gurinder Grewal, licensed REALTOR® in the Province of Alberta.
The trademarks REALTOR®, REALTORS®, and the REALTOR® logo are controlled by The Canadian Real Estate Association (CREA) and identify real estate professionals who are members of CREA. Used under license.
The trademarks MLS®, Multiple Listing Service®, and the associated logos are owned by The Canadian Real Estate Association (CREA) and identify the quality of services provided by real estate professionals who are members of CREA. Used under license.

© 2025, All Rights Reserved | Privacy Policy | Mobile Site | REALTOR® Websites by RealPageMaker