register | confirm account | forgot password
Gurinder Grewal
Maxwell Polaris
202, 9618 42 Ave, Edmonton, Alberta
P: 780-450-6300
F: 780-450-6670
Email
Feature Listings Button
Button advertising your Feature Listings
Feature Listings
MLS® Search Button
Button advertising your MLS® Search page
Map-based MLS® Search
Mortgage Widget
Mortgage Widget Button allowing access to the Mortgage Calculator
Mortgage Calculator

Listing Details

For more information on this listing or other please contact me.

Courtesy of RE/MAX Vision Realty.
Data was last updated 2025-06-25 at 20:18:11 GMT
Price data not available

5211 50 Street   Drayton Valley, Alberta

MLS®: E4449057
URL:    
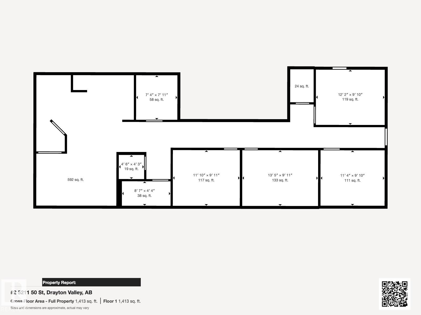
For Lease: 1350 Sq Ft Office Space on Prime 50th Street ? High Exposure | Flexible Terms | Quick Possession  Now available ? a 1350 sq ft professional office space in a high-visibility location on 50th Street, perfect for businesses looking to establish or grow in a prime commercial corridor.  Key Features: 4 private offices. Spacious reception area. Coffee/staff break room. Ample on-site parking. Outstanding signage and street exposure. Quick possession available. This well-laid-out space is ideal for medical, financial, administrative, or professional services. Located in a highly accessible area with strong traffic counts and excellent visibility.  Lease Details: $12.00 per sq ft + Triple Net (NNN). Landlord open to Gross Lease options. Additional 2034 sq ft available next door ? expand as needed! Whether you're upsizing or relocating, this space checks all the boxes for location, flexibility, and functionality.
For Lease: 1350 Sq Ft Office Space on Prime 50th Street ? High Exposure | Flexible Terms | Quick Possession Now available ? a 1350 sq ft professional office space in a high-visibility location on 50th Street, perfect for businesses looking to establish or grow in a prime commercial corridor. Key Features: 4 private offices. Spacious reception area. Coffee/staff break room. Ample on-site parking. Outstanding signage and street exposure. Quick possession available. This well-laid-out space is ideal for medical, financial, administrative, or professional services. Located in a highly accessible area with strong traffic counts and excellent visibility. Lease Details: $12.00 per sq ft + Triple Net (NNN). Landlord open to Gross Lease options. Additional 2034 sq ft available next door ? expand as needed! Whether you're upsizing or relocating, this space checks all the boxes for location, flexibility, and functionality.

Listing Information

Prop. Type:
Commercial Lease
Status:
Active
City:
Drayton Valley
MLS® Number:
E4449057
Area:
Edmonton
Province:
Alberta

General Information

Year Built:
1978

VIP-Only Information

Sign-Up or Log-in to view full listing details:
Sign-Up / Log In
This property is listed by RE/MAX Vision Realty and provided here courtesy of Gurinder Grewal. For more information or to schedule a viewing please contact Gurinder Grewal.
Gurinder Grewal
Maxwell Polaris
Phone: 780-450-6300
Mobile Phone: 780-709-7484
Inquire Via Email
Data is deemed reliable but is not guaranteed accurate by the REALTORS® Association of Edmonton.
Data last Updated: 2025-06-25 at 20:18:11 GMT America/Edmonton
This site's content is the responsibility of Gurinder Grewal, licensed REALTOR® in the Province of Alberta.
The trademarks REALTOR®, REALTORS®, and the REALTOR® logo are controlled by The Canadian Real Estate Association (CREA) and identify real estate professionals who are members of CREA. Used under license.
The trademarks MLS®, Multiple Listing Service®, and the associated logos are owned by The Canadian Real Estate Association (CREA) and identify the quality of services provided by real estate professionals who are members of CREA. Used under license.

© 2025, All Rights Reserved | Privacy Policy | Mobile Site | REALTOR® Websites by RealPageMaker